📌 목차
1.물건 내역

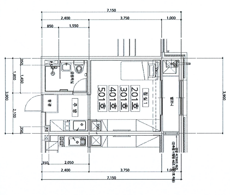
-세종시 변두리 원룸_ 전용 6.3평 (신축급)
-시행사가 분양이 안되어 pf대출 상환하지 못해 나온 물건으로 보임.
-자유롭게 매매할 수 있는 물건인지 확인 요함. (네이버 매물은 단기임대만 있음)
=>임대아파트인가?
-총 25세대의 다세대 (아파트 아님)
-5회 유찰된 신탁공매 물건.
-주차장 잘 되어 있음.
-단기임대만 매물로 있음.
-시세 파악 어려움.



-분양을 2021년 한 것으로 보임.
-공매 물건으로 5회 유찰
-최저입찰가 : 49,000,000원
-공시가격 : 44,300,000원 (지방2억이하 _주택수 불산입)




-매매는 안되나?
-온비드 재공매공고문

2.수요분석
1)낙찰 후 빠른 시기에 매도 가능한가?
-강원대학교 춘천캠퍼스 학생들 이주수요 때문인지.....거래량이 매우 활발한 편.
-학생들 수요로 인한 임차 수익목적 투자자 수요 비례하여 많은 것으로 예상됨. (중개소 확인사항)
-수요는 충분하다고 판단됨. (6개월단위...학기마다)
2)거래량
3.시세분석
1)입지분석
-세종시 인구 : 약 39만 2천 명

-단기매매는 지역분석을 하지 않기로 한다.
-위험요소가 많이 있는 경우(특히 안팔리는 경우나 명도 문제 등으로 투자기간 길어질 것이 예상되는 경우)에만 분석한다.


2)매매 및 전월세 가격
-세종시 전체는 분위기가 반등세를 보이고 있으나 해당 물건은 변두리 입지로 영향 미치지 않을 것으로 예상. =>중개소 확인 사항


4.수익률 분석

[simulation]
-대출 : 낙찰가의 80%
-대출이자 : 5%
-부가세 : 면세 (국민평형이하)
-취득세 : 1%
-양도세(매매사업자_소득세) : 20%
[수익금과 수익률]
-투하자금 : 1,534만원 (임차 맞추지 않는 경우)
-순이익금 : 460만원
-수익률 : 30% (연간수익률 : 60%)
5.check list (위험요소)
1-1)단기임대만 매물로 나와 있는 이유는?
=> 매매 가능한가? 임대주택인가?
1-2)매도 기간_얼마나 걸릴까?
-6개월 이내 매도 할 수 있는가?
- 세종시 전체는 분위기가 반등세를 보이고 있으나 해당 물건은 변두리 입지로 영향 미치지 않을 것으로 예상
2)물건_상태_수리 비용(인테리어 비용)
-인테리어 비용 100만원 책정함
3)자금_대출 얼마나?
-매매사업자 대출
-5% 금리로 대출 받을 수 있는가?
4)세금 등_얼마?
-매매사업자 소득세
-기장료 등 세무대행 비용
5.최종입찰가 산정
1)다음 입찰일시 : 2025-05-26 10:00 ~ 2025-05-26 17:00
2)입찰가: ?만원